|
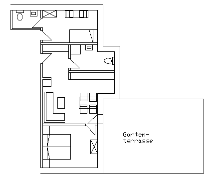
Wohnung: Das Appartement für 1-4 Personen ist eine 2 1/2 Zimmerwohnung mit einem angrenzendem Zusatzzimmer. Ein klares Bild zur Zimmeraufteilung verschafft Ihnen der Grundriss (siehe weiter unten). Die Wohnung besteht aus einer gemütliche Wohnecke, einer offenen Küche, einem rustikal eingerichteten Doppelzimmer und einem WC mit Dusche. Das Zusatz-zimmer bietet Ihnen ein Etagenbett und ein weiteres WC. Die idyllische Gartenterrasse gehört ebenso wie die Liegestühle und die Garteneinrichtung zu Ihrem Feriendomizil.
Einrichtung / Ausstattung: Ihre Ferienbleibe ist modern und mieterfreundlich eingerichtet. Für Unterhaltung ist dank Radio, Satelliten-Fernseher und kostenlosem Internetzugang gesorgt. Mit mit einer grosszügigen Küchenausstattung (u.a. mit Backofen, Sets für Käsefondue und Fondue Chinoise/Bourguignon) versuchen wir Ihnen bestmögliche Vorraussetzungen für das leibliche Wohl zu verschaffen. Bett- und Frottewäsche stellen wir Ihnen zur Verfügung und auf Anfrage können Sie auch von der Wachküche Gebrauch nehmen.
Zum Haus: Die Ferienwohnung befindet sich im Parterre des vierstöckigen Haus Foresta. Auf der ersten und zweiten Etage befinden sich zwei weitere Ferienarrangements während der dritte und vierte Stock privat genutzt werden. Das Haus ist am Waldrand und abseits von Discos und Bars gelegen und doch nur 200m vom Dorfplatz entfernt. Zum Aufbewahren von Skis, Alpinausrüstung und sonstigem Gepäck dient Ihnen ein Ski- und Ablageraum.
|


|